Tampico Tamaulipas

México, Tampico, Tamaulipas

  • $10,200,000 MXN En Venta
Ver Tour Virtual

Detalles

  • Tipo: Bodega industrial
  • ID: EB-UI6818
  • Clave interna: 118603
  • Antigüedad: 2025
  • Asesor: Via Inmuebles

Descripción

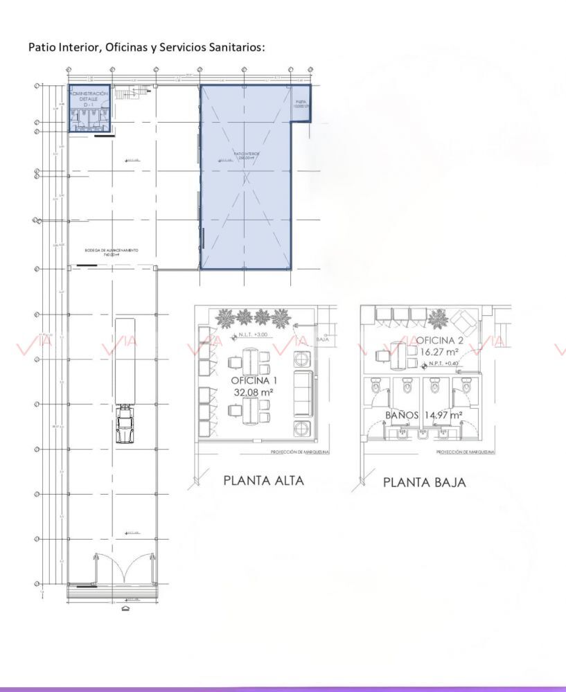
Bodega Tampico es una amplia propiedad de 1136m2 de terreno con 760 metros de frente y 255 metros de fondo, ideal para uso industrial. Cuenta con una construcción de 1208 metros distribuidos en una sola planta, con 4 medios baños para mayor comodidad. La estructura principal es de armaduras y estructura metálica, con ejes transversales y longitudinales cada 5 metros, lo que garantiza su solidez y durabilidad. Además, cuenta con 7 lámparas tipo UFO de 100 watts para un excelente alumbrado. ¡No pierdas la oportunidad de adquirir esta propiedad única! Id Gvia: 118603

Amenidades

  • Bodega
Via Inmuebles

Via Inmuebles

EB-UI6818
Imprimir propiedad

Ubicación

México, Tampico, Tamaulipas

Propiedades destacadas