Marcela Rodriguez
Marcela Rodriguez
  • Office: 8125560030
  • Email: mrodriguez@ametria.mx

TERRENO BOSQUES

El Barrial, Santiago

$5,006,500 For Sale

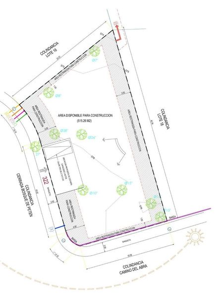
  • 751.73 m² Lot Size
  • 32.28 m Lot Width
  • EB-PD2972 ID
Description

Hermoso terreno plano con 751.73m2 ubicado en las afueras del Fraccionamiento Bosque Residencial. Se encuentra dentro de una privada pequeña, rodeado de muchos árboles encino que da una sensación de estar en un bosque. Cuenta con un increible frente de 32.28 m2 y el costo de mantenimiento es de tan solo $470 pesos.

Propiedad sujeta a disponibilidad y cambio de precio sin previo aviso. El envío de esta ficha no implica compromiso legal. La información y medidas son aproximadas y deben verificarse con la documentacion correspondiente

Marcela Rodriguez
Marcela Rodriguez
  • Office: 8125560030
  • Email: mrodriguez@ametria.mx