Via Inmuebles
Via Inmuebles
  • Cell: +528123946923
  • Office: 8125560030
  • Email: portales@gvia.mx

Tampico Tamaulipas

México, Tampico

$10,200,000 For Sale

  • 1,208 m² total space
  • 1,136 m² Lot Size
  • 2025 Age
  • EB-UI6818 ID
Description

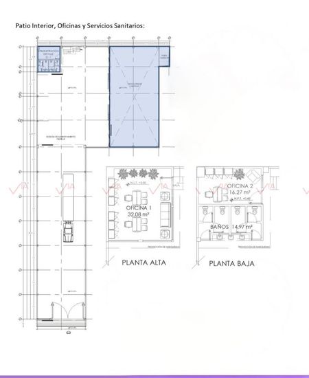
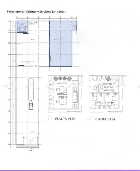
Bodega Tampico es una amplia propiedad de 1136m2 de terreno con 760 metros de frente y 255 metros de fondo, ideal para uso industrial. Cuenta con una construcción de 1208 metros distribuidos en una sola planta, con 4 medios baños para mayor comodidad. La estructura principal es de armaduras y estructura metálica, con ejes transversales y longitudinales cada 5 metros, lo que garantiza su solidez y durabilidad. Además, cuenta con 7 lámparas tipo UFO de 100 watts para un excelente alumbrado. ¡No pierdas la oportunidad de adquirir esta propiedad única! Id Gvia: 118603

Amenities
  • Storge Unit
Via Inmuebles
Via Inmuebles
  • Cell: +528123946923
  • Office: 8125560030
  • Email: portales@gvia.mx