Via Inmuebles
Via Inmuebles
  • Cell: +528123946923
  • Office: 8125560030
  • Email: portales@gvia.mx

Plaza Aura

Real de Valle Alto, Monterrey

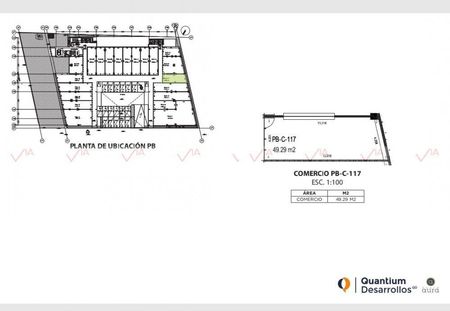
$22,540 For Rent

  • 49 m² total space
  • 2025 Age
  • 1 Floor
  • EB-OD2730 ID
Description

¡Excelente oportunidad de renta en Plaza Comercial Punto Aura en Carretera Nacional! Tenemos dos locales disponibles en planta baja: Local 117 con 49.29 metros y Local 118 con 72.31 metros. El precio es desde $550/m2. El costo de mantenimiento aún no está definido por la plaza. Algunos giros ya están cerrados o apartados, pero puedo verificar la disponibilidad según cada giro. ¡No pierdas esta oportunidad! Id Gvia: 109446

Via Inmuebles
Via Inmuebles
  • Cell: +528123946923
  • Office: 8125560030
  • Email: portales@gvia.mx