Via Inmuebles
Via Inmuebles
  • Cell: +528123946923
  • Office: 8125560030
  • Email: portales@gvia.mx

Magna Park

Terra Park Santa Catarina, Santa Catarina

$110,000 For Rent

  • 4 Parking spaces
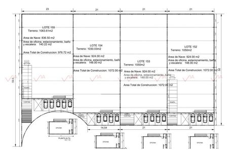
  • 977 m² total space
  • 1,063 m² Lot Size
  • 2025 Age
  • EB-RD5478 ID
Description

Bodegas a estrenar en Renta Ubicada en parque industrial Magna Park en Santa Catarina con vigilancia 24/7
Desde 1000, 2000, 3000 o 4000.
110 pesos el m²
Cada 1000 m² se encuentra:
Oficina de 62m² en planta alta equipada con baño y un baño completo dentro de la bodega.
Cortina metálica de 6.20 x 5 mts.
4 louvers, lamina KR 18 cal. 24
Con rampa
Altura bodega de 10.3 mts.al centro y 7.3mts costados.
Aislante termico en techo, lámparas interiores y exteriores.
Resistencia 200 kg/cm2, firme 15cm de espesor. Medida de la calle 12mts de ancho
Se pueden rentar juntas o por separado.
Se piden 2 meses de deposito. Id Gvia: 113743

Amenities
  • Storge Unit
Via Inmuebles
Via Inmuebles
  • Cell: +528123946923
  • Office: 8125560030
  • Email: portales@gvia.mx
Via Inmuebles
Via Inmuebles
  • Cell: +528123946923
  • Office: 8125560030
  • Email: portales@gvia.mx