Via Inmuebles
Via Inmuebles
  • Mobile Phone: +528123946923
  • Office: 8125560030
  • Email: portales@gvia.mx

T.A.D. Pemex Refineria, Santa Catarina

El Palmal Parque Industrial

$80,000 For Rent

EB-SH1073
  • 10 Parking Spaces
  • 884 m² total space
  • 1,131 m² Lot Size
  • 2024 Age
  • EB-SH1073 ID
Description

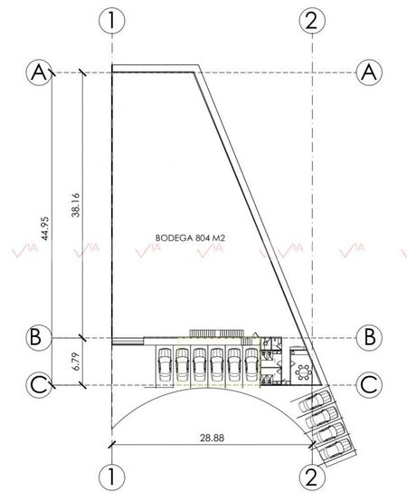
Bodega en renta ubicada en el prestigioso parque industrial El Palmar en Santa Catarina. Esta bodega tiene un 1 anden de cortina metálica de 10 metros de altura en un terreno de 1,131 m2, con 884m2 de construcción, de los cuales 804 m2 son de bodega y 80 m2 de oficina. En la planta baja cuenta con un área de comedor, caseta, baños de mujeres y de hombres. En la planta alta se encuentran las oficinas, amuebladas con área de trabajo, minisplits, 2 medios baños, un privado y una sala de juntas. El techo de la bodega es de colchoneta térmica. La bodega es ideal para almacenamiento, distribución, operaciones logísticas o manufactura. En el área de estacionamiento cuenta con 10 cajones de estacionamiento (5 techados y 5 sin techar), tiene transformador de 45 Kva´ y patio para maniobras y parking. El parque industrial El Palmar, cuenta con caseta de vigilancia y seguridad 24 horas, amplias calles, servicios de agua y drenaje con uso industrial, luz LED, garantiza fácil acceso a las principales vías de transporte de Santa Catarina. Esta bodega esta diseñada para maximizar la eficiencia operativa, con espacios bien distribuidos y características que permiten un manejo ágil y seguro que te da la oportunidad de establecer o expandir tu negocio. Id Gvia: 115507

Amenities
  • · Furnished
  • · Storge Unit
Via Inmuebles
Via Inmuebles
  • Mobile Phone: +528123946923
  • Office: 8125560030
  • Email: portales@gvia.mx
Via Inmuebles
Via Inmuebles
  • Mobile Phone: +528123946923
  • Office: 8125560030
  • Email: portales@gvia.mx