Tere Guzman Bremer
Tere Guzman Bremer
  • Cell: 8180208242
  • Office: 8125560030
  • Email: tereguzmanb@gmail.com

EDIFICIO EN VENTA ZONA VALLE ORIENTE

Residencial Santa Bárbara, San Pedro Garza García

$32,000,000 MXN For Sale

  • 16 Parking spaces
  • 1,015 m² total space
  • 491.99 m² Lot Size
  • 19.49 m Lot Length
  • 25.6 m Lot Width
  • 2 Floors
  • EB-NQ6943 ID
Description

Edificio de oficinas en venta zona Valle Oriente cerca del tunel Loma Larga y Av. Lázaro Cárdenas. Ideal para Oficinas Corporativas, Despacho de abogados, Notarias, Desarrolladores de Softwares, etc..

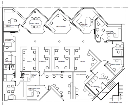
PLANTA ALTA - Área de recepción. 10 oficinas privadas. Open Space. 2 baños de hombre y un mingitorio, 2 baños de mujer y 1 baño de visitas. Cocineta. Site.
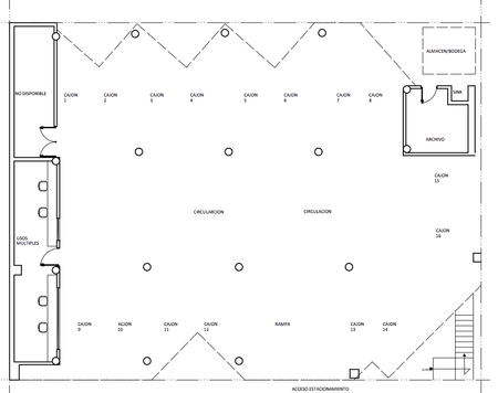
PLANTA BAJA - Estacionamiento con 16 lugares. Bodega. Cocineta con comedor.
SÓTANO - Cuarto de usos múltiples con closet también para usos múltiples. Tiene preparación para elevador de carga. 1 Baño mixto.

Terreno : 491.99 m2
Construcción: 1,015 m2

Cuenta con:
- Climas centrales y minisplits.
- Planta de luz.
- Sisterna.

NOTA:
No se vende en partes.
No cuenta con elevador.
Por el momento se encuentra rentado

Amenities
  • Covered parking
  • Street parking
  • Air conditioning
  • Backup generator
  • Cistern
  • Storge Unit
  • Heating
Tere Guzman Bremer
Tere Guzman Bremer
  • Cell: 8180208242
  • Office: 8125560030
  • Email: tereguzmanb@gmail.com
Tere Guzman Bremer
Tere Guzman Bremer
  • Cell: 8180208242
  • Office: 8125560030
  • Email: tereguzmanb@gmail.com