Via Inmuebles
Via Inmuebles
  • Cell: +528123946923
  • Office: 8125560030
  • Email: portales@gvia.mx

Cienega de Flores

Ciénega de Flores Centro, Ciénega de Flores

$2,180,000 For Rent

  • 100 Parking spaces
  • 18,330 m² total space
  • 36,799 m² Lot Size
  • 2025 Age
  • EB-PP9982 ID
Description

Nave Industrial AAA en renta con ubicación estratégica a menos de 30 minutos del Aeropuerto internacional de Monterrey, con accesos a carretera a Saltillo, CDMX, Monclova, Reynosa, Mcallen Tx y Laredo Tx. La nave se encuentra dentro de Parque Industrial que cuenta con seguridad y acceso controlado 24/7.
Naves con opción BTS (build to suit) o nave hecha a la medida, con los requerimientos del cliente.
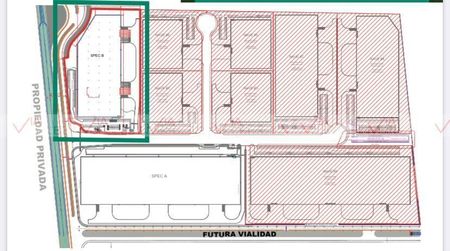
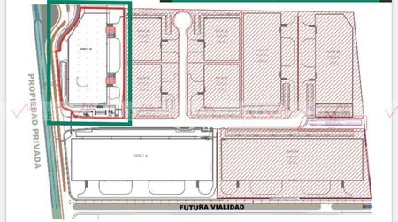
Land Area: 36,799 m2, 396,101 Sq Ft
Building Area: 18,330 m2, 197,308 Sq Ft

Floor Thickness: 6 inch/ 15cm
Wall Material: Pre-Cast Concrete
Building Structure: Steel Riding Frame
Roof Material: Standing Seam Roof
Substation: According to client needs
Parking Lots: 124 Spaces
Ramp: 2 Concrete Ramp
Docks: 8 + 6 Docks
Skylights: 4% approx
Precio x Sq Ft apróximado: .55 usd a .65usd x Sq Ft x Month
CAM(Common Area Maintenance): $0.028 USD x SqFt x Month Approx.
*Los precios de renta de la Nave son en USD, son aproximados y están sujetos a disponibilidad y a cambio.
Precios son + IVA. Available 3Q'24 Id Gvia: 111474

Amenities
  • Storge Unit
  • Alarm
Via Inmuebles
Via Inmuebles
  • Cell: +528123946923
  • Office: 8125560030
  • Email: portales@gvia.mx
Via Inmuebles
Via Inmuebles
  • Cell: +528123946923
  • Office: 8125560030
  • Email: portales@gvia.mx