Balbina Manjarrez
Balbina Manjarrez
  • Cell: 8117901152
  • Office: 8125560030
  • Email: bmanjarrez@gerenciared.com

Casa en Venta, Las Alondras, San Pedro Garza García

Las Alondras, San Pedro Garza García

$95,000,000 For Sale

  • 4 Bedrooms
  • 7 Bathrooms
  • 1 Half Bathrooms
  • 7 Parking spaces
  • 2,037 m² total space
  • 1,980 m² Lot Size
  • EB-RJ1563 ID
Description

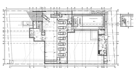
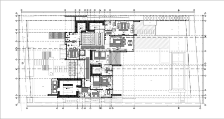
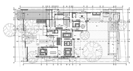
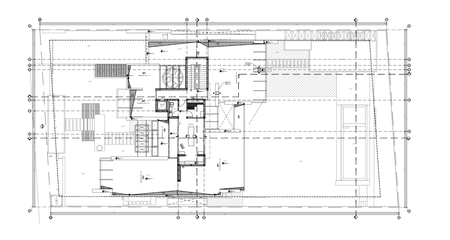
Espectacular residencia en obra gris, ideal para que la finalices a tu gusto. Ubicada en una exclusiva privada, diseñada y construida por un reconocido arquitecto, la propiedad incluye el proyecto arquitectónico completo. Situada en una zona privilegiada y exclusiva, por encima de Roberto Garza Sada, ofrece amplios y funcionales espacios: doble sala, comedor, antecomedor, amplio cuarto de juegos, cocina y family room. Dispone de cuatro recámaras con walk-in closets, estancia familiar, cuarto de pintura y un hermoso jardín con vistas impresionantes a las montañas. Además, cuenta con dos terrazas, una techada y otra al aire libre, y una cochera para siete autos. BM

*Contáctanos para conocer más detalles y agendar una visita.
*Precio sujeto a cambio sin previo aviso.
*Imágenes Propiedad de Gerencia RED.

Amenities
  • Covered parking
  • Garden
  • Terrace
  • Storge Unit
  • Kitchen
  • Laundry Room
  • Study
  • Office
Balbina Manjarrez
Balbina Manjarrez
  • Cell: 8117901152
  • Office: 8125560030
  • Email: bmanjarrez@gerenciared.com