Mauricio Marcos Murra
Mauricio Marcos Murra
  • Cell: 8183664703
  • Office: 8125560030
  • Email: mauricio@marmur.mx

BODEGA INDUSTRIAL EN RENTA PARQUE INDUSTRIAL SANTA CATARINA

Parque Industrial Martel de Santa Catarina, Santa Catarina

$826,420 For Rent

  • 18 Parking spaces
  • 5,903 m² total space
  • 6,900 m² Lot Size
  • New Age
  • EB-SY5201 ID
Description

Excelente Nave industrial para estrenar, ubicada dentro de parque industrial con caseta de vigilancia y accesos controlados, estratégica ubicación dentro de la zona industrial del municipio de Santa Catarina con accesos rápidos a la carretera a Saltillo y el Libramiento Noreste.

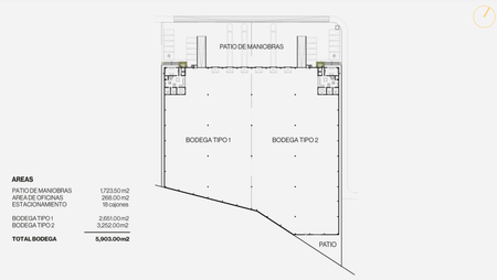
Área de Almacén: 5,903.00 m2
Patio de Maniobras: 1,723.50 m2 aprox/ incluye los cajones de estacionamiento
Área de Oficinas: 268 m2 área propuesta a construir según negociación
Cajones de estacionamiento 18 cajones

ESPECIFICACIONES
*Muros de Concreto precolado de 4 pulgadas de espesor.
*Antigüedad : Nueva / en proceso
*Estructura: De tres placas y polín Z
*Tamaño de Bahía: de 21 m por 14.80 m + / se anexa plano
*Rampas y docks 2 rampas de acceso a la nave con cortina metálica
*6 andenes de 8 por 10 pies, con rampa niveladora hidráulica de 30,000 lbs. todos con cortina metálica con mecanismo de cadena
*Altura Libre (mínima): 11.00 mts. A la rodilla interior
*Altura Libre (máxima): 13.15 mts. En la cumbrera
*Cubierta: Lamina engargolada KR18 sujeta con clip flotante.
*Aislante en cubierta:3 pulgadas de fibra reforzada. R10
*Iluminación natural :traslucidas de policarbonato al 4%
*Iluminación: LED alta eficiencia incluida
*Sistema Contra incendio: No tiene
*Piso, Firme: Concreto Fc´250 Kg/ cm2 reforzado, de 15 cm. de espesor enrase y nivelación con Láser, curado con densificado de superficie Dimaond Hard para incrementar la resistencia a la abrasión del rodado de los montacargas. Juntas de expansión selladas con epóxico semi rígido.

*Ventilación: Louvers de 1.20 por 1.20 en fachada ppal y trasera
*Salidas de Emergencia: 2 puerta de emergencia y acceso peatonal a la nave
*Energía Eléctrica: Subestación compartida con dos servicios de 500 Kva
*Red de drenaje: Interna en Patio de maniobras
Servicios disponibles:
Electricidad
Agua Potable y Drenaje sanitario
Internet alta velocidad

Amenities
  • Platform
  • Street parking
  • Storge Unit
  • 24 Hour Security
Mauricio Marcos Murra
Mauricio Marcos Murra
  • Cell: 8183664703
  • Office: 8125560030
  • Email: mauricio@marmur.mx
Mauricio Marcos Murra
Mauricio Marcos Murra
  • Cell: 8183664703
  • Office: 8125560030
  • Email: mauricio@marmur.mx