Julio González
Julio González
  • Cell: +529832522296
  • Office: 8125560030
  • Email: ejecutivo@avcinmobiliaria.com

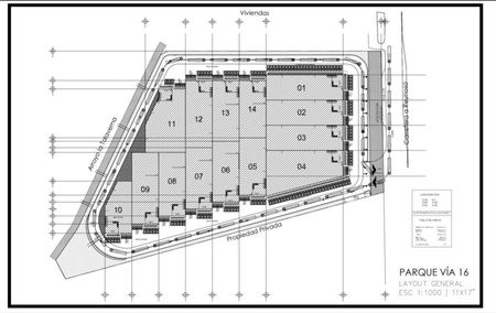
Bodega Industrial en Guadalupe NL

3 Caminos Norte, Guadalupe

US$ 7.20 per m² For Rent

  • 5 Parking spaces
  • 3,159 m² total space
  • 3,350 m² Lot Size
  • 1 Floors
  • New Age
  • .58 USD/m2 Expenses
  • EB-TM8307 ID
Description

Bodega Industrial en Guadalupe Nuevo León

Bodega industrial dentro de parque .

D a t o s G e n e r a l e s
- A l t u r a Libre(12.50 - 1 4 . 1 0 M ) |
-Cuadricula d e columnas interiores acada 1 0 Metros
-8" Firme Reforzado (20 c m s )
-Muros de Concreto Pre-Colados 5 "
-Cubierta con sistema SR KR-18
-Aislamiento MBI en cubierta d e 3 "
- Cortinas en Rampas Montacargas 10 ft x 14 ft
- Aceso Vehicular a l interior d e N a v e p o r R a m p a de 8m x 7 m
-Luminarias tipo LED
-Iluminación interior 70 Luxes
- 2500 kva's para servicio d e parque / 7 5 kva's por modulo.

Accesos principales con canceleria d e aluminio
-Patio de Maniobras concreto MR-45 en 8" de espesor
-Sistema de Ventilación Natural, con ventilador de gravedad
( 3 a 5 cambios por hora)
-Sistema Contra Incendio (gabinetes y mangueras)
-Cajones d e Estacionamientos (121)
-Aceso con Caseta d e guardias
-Canalización para voz, datos y CTV
-Cisterna de Agua Potable (200M3)
-Barda Permietral d e 3.0 m d e Altura

NOTA: Precios y disponibilidad , sujetos a cambios sin previo aviso .

Julio González
Julio González
  • Cell: +529832522296
  • Office: 8125560030
  • Email: ejecutivo@avcinmobiliaria.com