Livitsi Soluciones Inmobiliarias
Livitsi Soluciones Inmobiliarias
  • Cell: +528126573900
  • Office: 8125560030
  • Email: solucionesinmobiliariaslivit@gmail.com

Bodega en Renta en Apodaca

Aeropuerto Internacional Mariano Escobedo, Apodaca

$2,823,744 For Rent

  • 70 Parking spaces
  • 19,219 m² total space
  • 34,446 m² Lot Size
  • 2024 Age
  • EB-SI0309 ID
Description

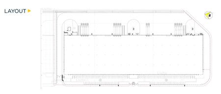
Nave Industrial en Renta – 19,219 m²

Nave con altura libre de 9.75 metros, cuenta con 14 andenes (con posibilidad de agregar 9 adicionales) y 3 rampas de acceso. Su diseño funcional incluye 124 cajones de estacionamiento.

Dispone de iluminación adaptable a necesidades del inquilino, tragaluces (5%), y subestación eléctrica a convenir. Las paredes son de paneles de concreto prefabricado, con techo de acero galvanizado KR-18 y aislamiento R-10.

El piso de concreto tiene un espesor de 15 cm con una capacidad de carga de 6,000 kg/m². La nave cuenta con un sistema de protección contra incendios adaptable y preparación para climatización según requerimientos.

CAM: costó por mantenimiento variable según los usos y necesidades del cliente

Precio en pesos basado en dólares según el tipo de cambio de la fecha de publicación, sujeto a cambio. a cambio. EM Id 13748 / 20664
La disponibilidad de cada inmueble está sujeta a cambio sin previo aviso.

Amenities
  • Platform
  • Street parking
Livitsi Soluciones Inmobiliarias
Livitsi Soluciones Inmobiliarias
  • Cell: +528126573900
  • Office: 8125560030
  • Email: solucionesinmobiliariaslivit@gmail.com
Livitsi Soluciones Inmobiliarias
Livitsi Soluciones Inmobiliarias
  • Cell: +528126573900
  • Office: 8125560030
  • Email: solucionesinmobiliariaslivit@gmail.com