Livitsi Soluciones Inmobiliarias
Livitsi Soluciones Inmobiliarias
  • Cell: +528126573900
  • Office: 8125560030
  • Email: solucionesinmobiliariaslivit@gmail.com

Bodega en Renta en Apodaca

Apodaca Centro, Apodaca

$143,760 For Rent

  • 1,198 m² total space
  • 1,198 m² Lot Size
  • 50 m Lot Length
  • 20 m Lot Width
  • 2024 Age
  • EB-SC9820 ID
Description

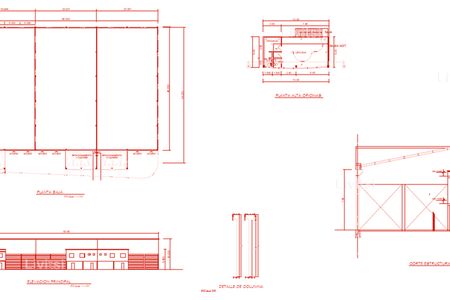
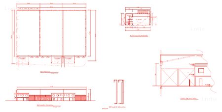
Bodega en excelente ubicación, disponible para estrenar en agosto con acabados modernos. Se encuentra en un nuevo fraccionamiento industrial con servicios de luz y agua. La bodega cuenta con amplias oficinas, incluyendo 2 baños, área de trabajo abierta y otra privada, así como un baño adicional en el área de almacenamiento. Además, cuenta con colcha térmica y un ventilador de gravedad, rampa, andén, altura de 7 metros y 9 metros en la parte más alta. También cuenta con estacionamiento para 2 vehículos y las cortinas de acero en la rampa y el andén son de 4.5 metros de ancho y 5 metros de alto. El precio es más IVA. EM Id 13690 / 20104
La disponibilidad de cada inmueble está sujeta a cambio sin previo aviso.

Amenities
  • Platform
  • Street parking
  • Office
Livitsi Soluciones Inmobiliarias
Livitsi Soluciones Inmobiliarias
  • Cell: +528126573900
  • Office: 8125560030
  • Email: solucionesinmobiliariaslivit@gmail.com